Am Kehlberg
Wohneinheiten
Größe
Zimmer
Grundstücksfläche
Wohnfläche
Zimmer
Nachhaltige Neubauwohnungen in Toplage am Grazer Kehlberg
Nachhaltiges Neubauprojekt in traumhafter Ruhelage am Grazer Kehlberg: 29 moderne Wohnungen mit 2–4 Zimmern und ca. 48–106 m². Energieeffizient mit Erdwärme (Tiefenbohrung), Photovoltaik, Solaranlage für Warmwasser und Kühlung via Bauteilaktivierung. Hochwertige Ausstattung und großzügige Außenflächen mit Glasgeländern.
Highlights dieses Projekts
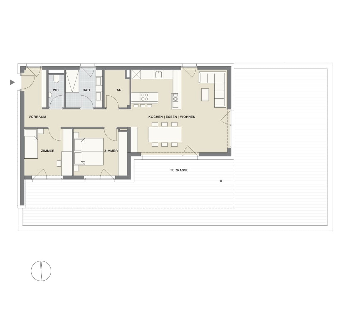
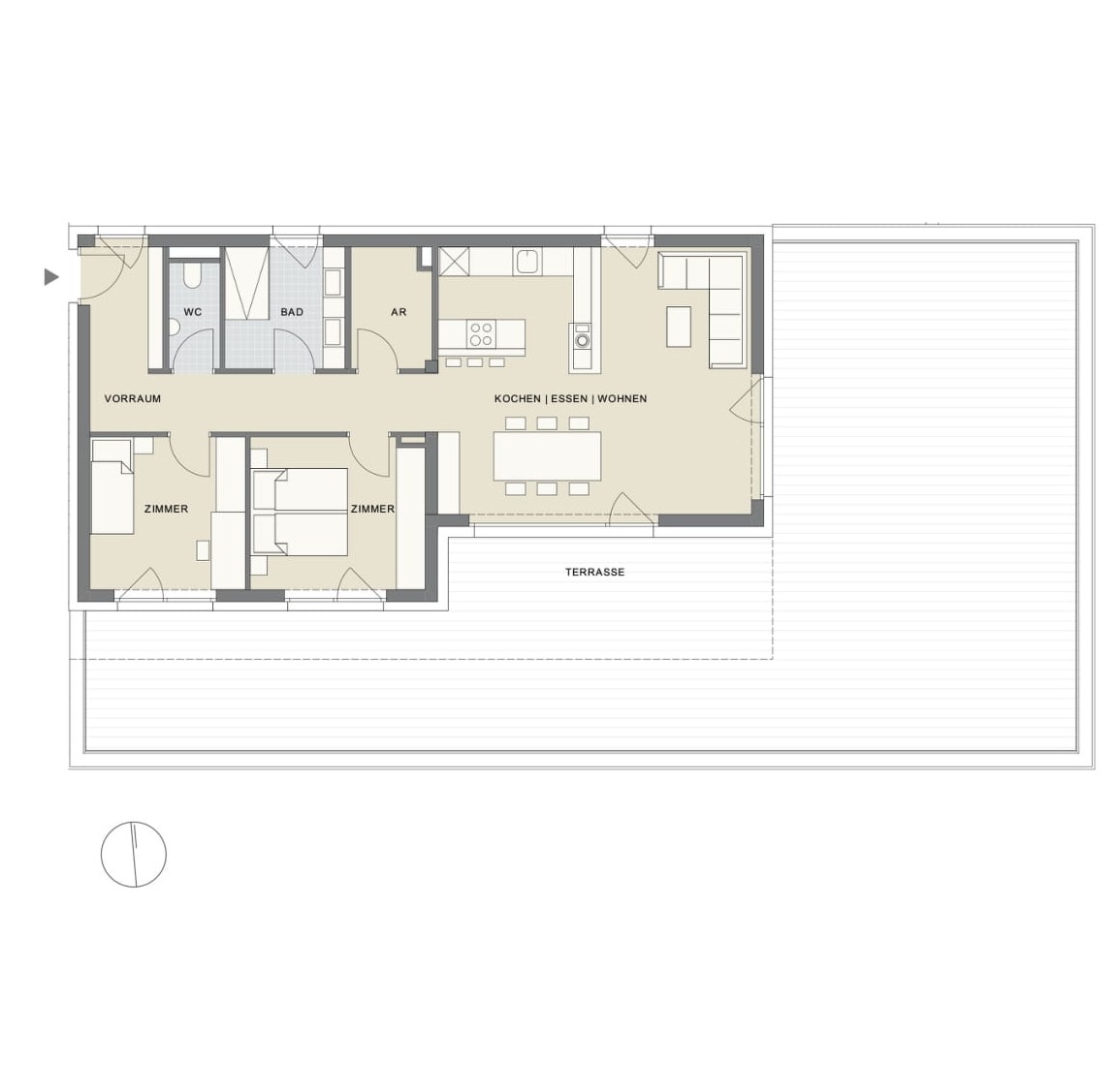
- 29 Wohneinheiten mit 2–4 Zimmern (ca. 48–106 m²)
- Toplage in Ruhelage am Grazer Kehlberg (Salfeldstraße 45–49, 8054 Graz)
- Erdwärmeheizung mittels Tiefenbohrung
- Photovoltaikanlage
- Kühlung der Wohnungen über Bauteilaktivierung (Stahlbetondecken)
- Warmwasser über thermische, wasserführende Solaranlage
- Hochwertige Ausstattung: Feinsteinzeug 60×60 cm, Eichendielen-Parkett, Glasfaser-Internet
- Großzügige Außenflächen mit Glasgeländern (Balkone & Terrassen)
Kategorie

Grundstücksfläche

Projektadresse


Baustart

Baustart

Fertigstellung

Einheiten in diesem Projekt
Noch ? von ? Einheiten verfügbar
Direkt zur Einheit:
Wie viel Wohnfläche hätten Sie gerne?
Was soll es denn sein?


Ruhelage am Kehlberg
Die Wohnanlage entsteht in der Salfeldstraße 45–49 in 8054 Graz, in begehrter Hanglage am Kehlberg. Die moderne Architektur fügt sich elegant in die Hangsilhouette mit Blickbezug zum Schloss St. Martin ein. Ideal für alle, die naturnah und ruhig wohnen möchten, ohne auf die Vorteile der Stadt Graz zu verzichten.
Lage & Infrastruktur

Supermarkt
Schwimmbad
Bahnhof
Bäckerei
700 m
700 m
<1.0 km
<1.0 km
<1.5 km
<1.5 km
<1.5 km
<1.5 km
Weitere aktuelle Projekte
Finanzierungsmöglichkeiten




Fordern Sie
jetzt Ihr Exposé an
Im Exposé erhalten Sie alle wichtigen Informationen zu Ihrer neuen Wohnmöglichkeit. Auf Wunsch vereinbaren wir gerne ein persönliches Beratungsgespräch, um Ihre individuellen Fragen zu klären.









.jpg)






































