Neubauprojekt mit Wienblick!
Wohneinheiten
Größe
Zimmer
Grundstücksfläche
Wohnfläche
Zimmer
Exklusives Neubauprojekt in begehrter Wohngegend südlich von Wien
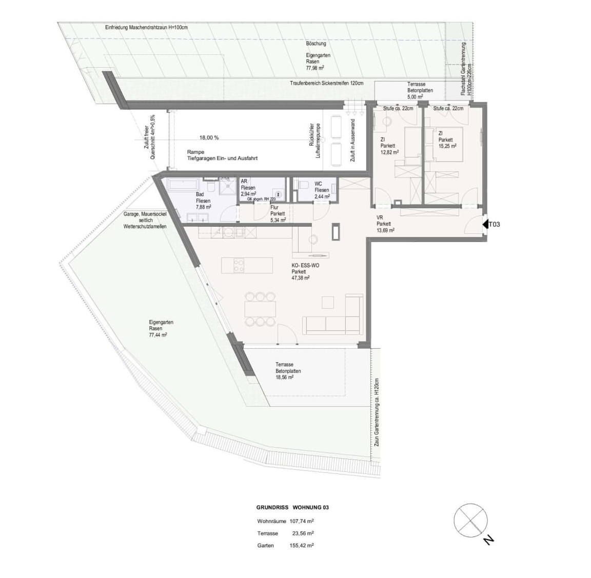
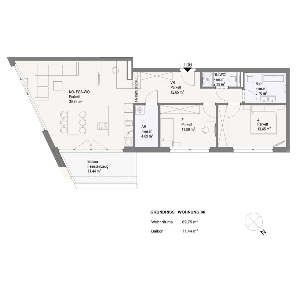
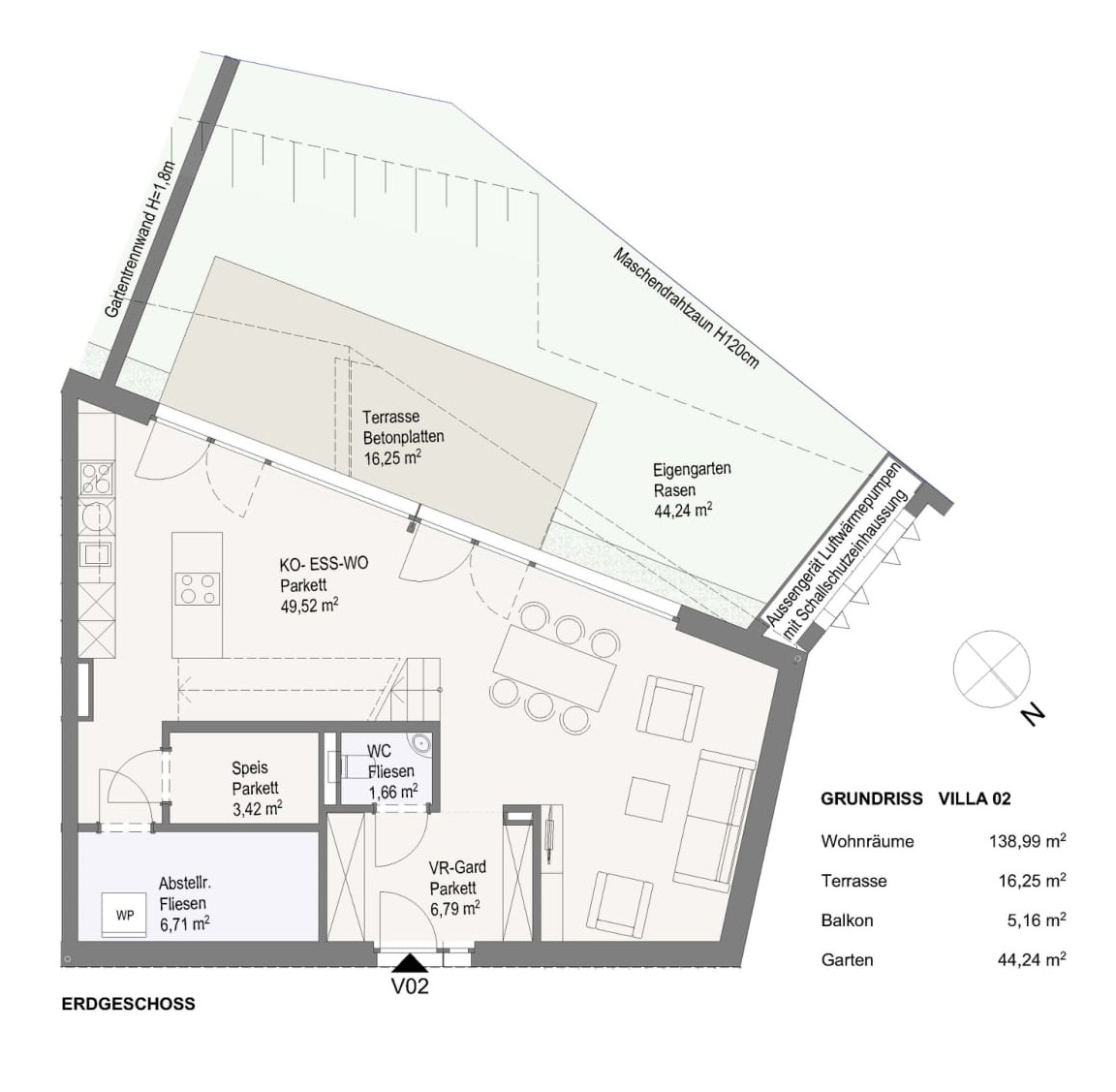
Exklusives, bezugsfertiges Neubauprojekt in Brunn am Gebirge: 11 hochwertige 3–4-Zimmer-Einheiten mit ca. 85–188 m² Wohnfläche. Nachhaltiges Energiekonzept mit Luft-Wärmepumpe & Photovoltaik sowie Bauteilaktivierung zum Heizen und zur zugfreien Kühlung. Moderne Ausstattung und großzügige Außenflächen wie Balkon, Loggia oder Terrasse.
Highlights dieses Projekts
- 11 hochwertige 3–4-Zimmer-Einheiten (ca. 85–188 m²)
- Bezugsfertig
- Luft-Wärmepumpe in Kombination mit Photovoltaik
- Bauteilaktivierung in Stahlbetondecken: Heizen im Winter, zugfreie Kühlung im Sommer
- Eiche Natur Langriemen Parkettboden
- Feinsteinzeug: 60×60 cm Boden, 30×60 cm Wand in Bad & WC
- Helle 60×60 cm Feinsteinzeug-Fliesen auf Loggien & Balkonen
- Elektrische, schienengeführte Raffstores mit Windwächter (Dachflächenfenster: elektrische Rollläden)
- Sanitärkeramik: Laufen Pro
- Wasseranschluss (selbstentleerend) auf Balkonen/Loggien/Terrassen
Kategorie

Grundstücksfläche

Projektadresse


Baustart

Baustart

Fertigstellung

Einheiten in diesem Projekt
Noch ? von ? Einheiten verfügbar
Direkt zur Einheit:
Wie viel Wohnfläche hätten Sie gerne?
Was soll es denn sein?


Ruhig & naturnah – top angebunden an Wien
Das Neubauprojekt in Brunn am Gebirge liegt in einer begehrten Wohngegend im Bezirk Mödling, südlich von Wien. Die Umgebung verbindet ruhiges, naturnahes Wohnen mit einer sehr guten Anbindung – ideal für Familien, Paare und alle, die Erholung im Grünen und kurze Wege in die Stadt schätzen.
Lage & Infrastruktur

Bushaltestelle
Bäckerei
Arzt
Supermarkt
50 m
50 m
200 m
200 m
1000 m
1000 m
1200 m
1200 m
Weitere aktuelle Projekte
Finanzierungsmöglichkeiten




Fordern Sie
jetzt Ihr Exposé an
Im Exposé erhalten Sie alle wichtigen Informationen zu Ihrer neuen Wohnmöglichkeit. Auf Wunsch vereinbaren wir gerne ein persönliches Beratungsgespräch, um Ihre individuellen Fragen zu klären.






























