Hang zur Sonne
Wohneinheiten
Größe
Zimmer
Grundstücksfläche
Wohnfläche
Zimmer
Moderne Eigentumswohnungen in ruhiger, naturnaher Lage nahe Graz
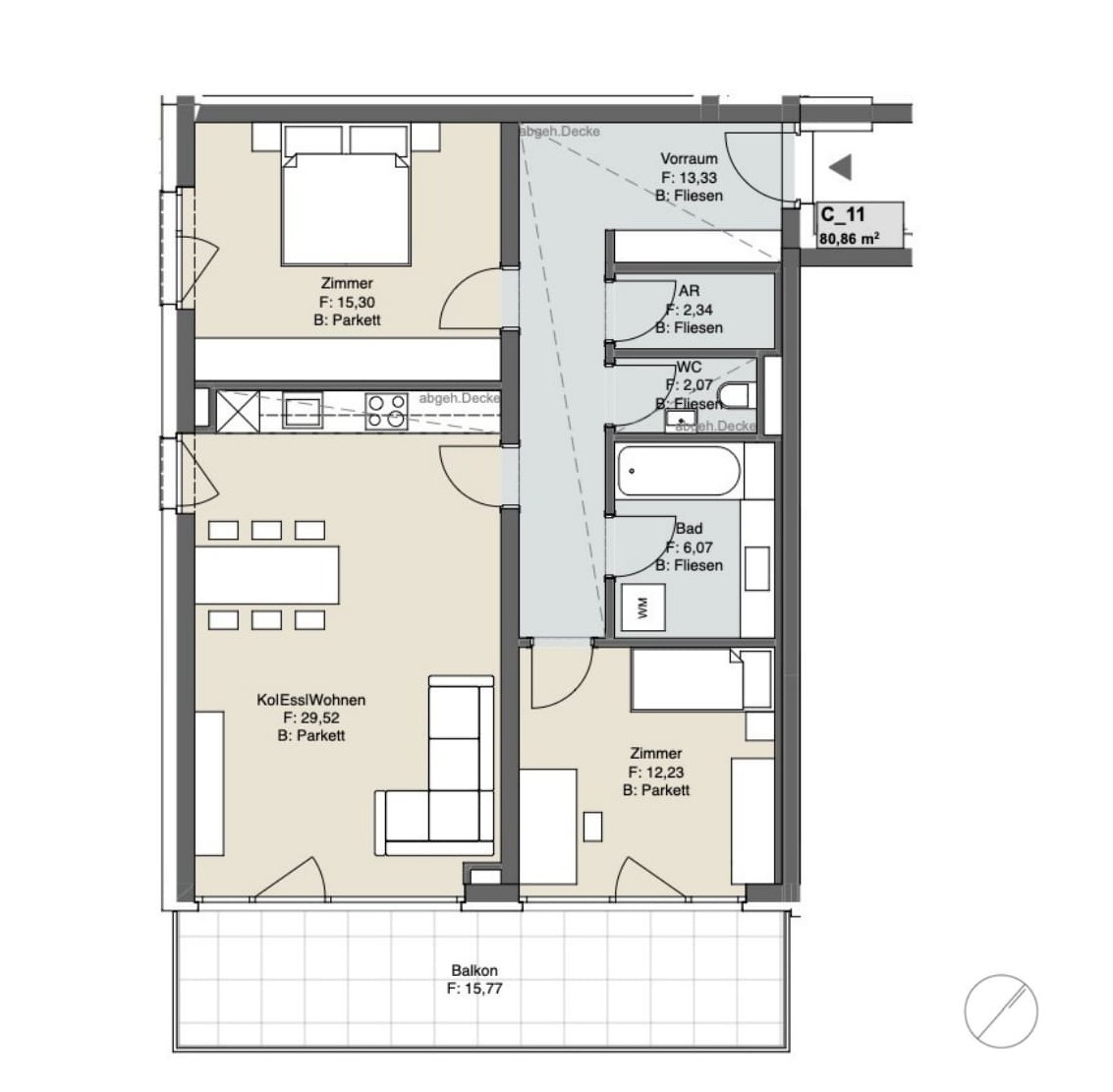
„Hang zur Sonne“ in Laßnitzhöhe umfasst 40 moderne Eigentumswohnungen (2–4 Zimmer, ca. 46–150 m²) mit großzügigen Außenflächen wie Balkonen, Terrassen oder Eigengärten. Energieeffiziente, nachhaltige Bauweise mit PV-Anlage für Allgemeinstrom, hochwertige Ausstattung und durchdachte Grundrisse – in traumhafter Ruhelage mit guter Infrastruktur, nur wenige Minuten von Graz entfernt.
Highlights dieses Projekts
- 40 moderne Eigentumswohnungen (2–4 Zimmer, ca. 46–150 m²)
- Ruhige, naturnahe Lage in Laßnitzhöhe – wenige Minuten von Graz
- Großzügige Außenflächen: Balkone, Terrassen und Eigengärten
- Nachhaltige, energieeffiziente Bauweise
- Photovoltaikanlage am Dach für Allgemeinstrom (Überschuss-Einspeisung)
- Kunststoff-Alu-Fenster mit Dreischeibenisolierverglasung
- Elektrische, schienengeführte Raffstores (80 mm)
- Landhausdiele Eiche
- Feinsteinzeug im Bad (60×60 cm Boden, 30×60 cm Wand) sowie 60×60 cm auf Balkonen/Terrassen
- Penthouse: Vorbereitung für Klimaanlage
- Zwischenwände doppelt beplankt
Kategorie

Grundstücksfläche

Projektadresse


Baustart

Baustart

Fertigstellung

Einheiten in diesem Projekt
Noch ? von ? Einheiten verfügbar
Direkt zur Einheit:
Wie viel Wohnfläche hätten Sie gerne?
Was soll es denn sein?


Ruhelage in Laßnitzhöhe – nah an Graz
Das Projekt „Hang zur Sonne“ entsteht in der Hauptstraße 119–120b in 8301 Laßnitzhöhe. Die Lage gilt als besonders ruhig und naturnah und verbindet entspanntes Wohnen im Grünen mit guter Infrastruktur. Graz ist in wenigen Minuten erreichbar – ideal für alle, die Rückzug und Alltagstauglichkeit kombinieren möchten.
Lage & Infrastruktur

Arzt
Schule
Apotheke
Bahnhof
500 m
500 m
600 m
600 m
650 m
650 m
<1.5 km
<1.5 km
Weitere aktuelle Projekte
Finanzierungsmöglichkeiten




Fordern Sie
jetzt Ihr Exposé an
Im Exposé erhalten Sie alle wichtigen Informationen zu Ihrer neuen Wohnmöglichkeit. Auf Wunsch vereinbaren wir gerne ein persönliches Beratungsgespräch, um Ihre individuellen Fragen zu klären.























































